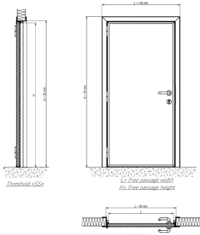
Schita montaj usi batante frigorifice 

Schita montaj usi culisante frigorifice

Schita montaj usi FLIP - FLAP

Schita montaj usi OFFICE